LE PARC DU CHATEAU - COEUR DE VILLE

5922 -A131-ROMBAUT-LE PARC DU CHATEAU – COEUR DE VILLE

Appartement

/

achat

450.000 €
À VENDRE – Appartement 3 pièces neuf en VEFA en rez de jardin avec terrasse et parking – La Celle-Saint-Cloud (Cœur de Ville)
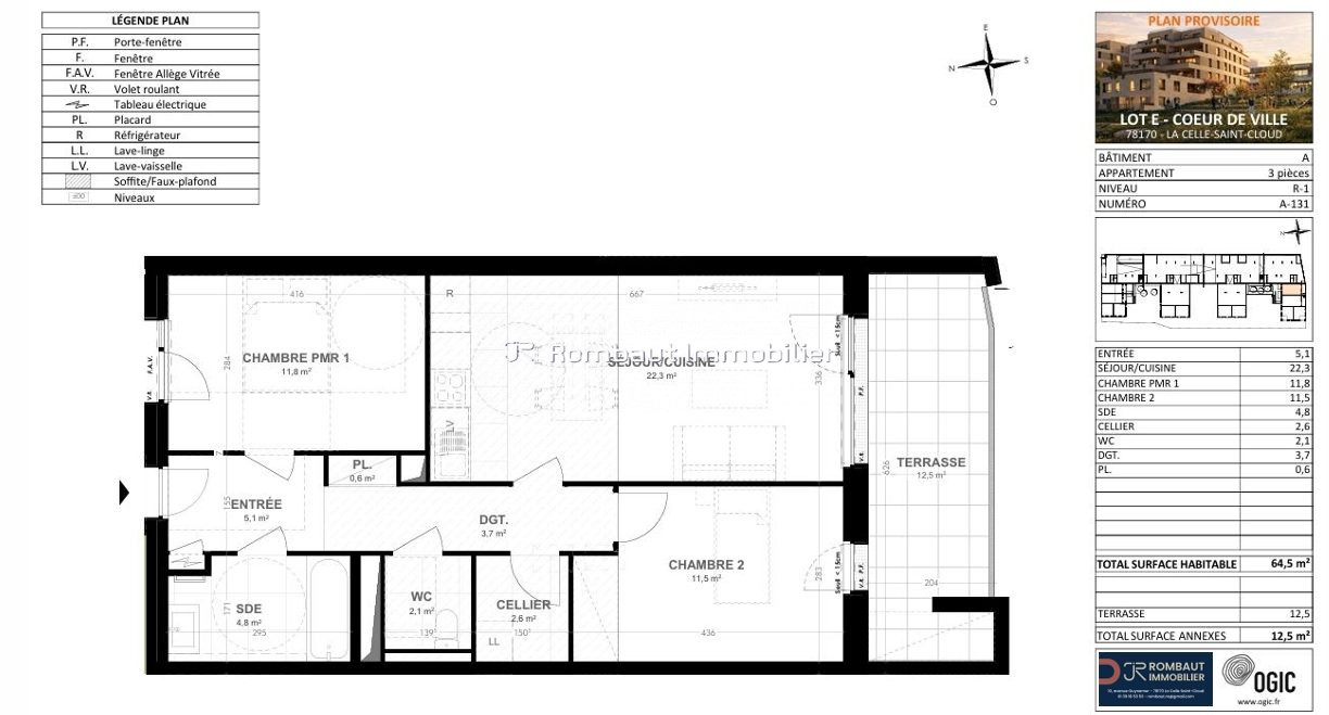
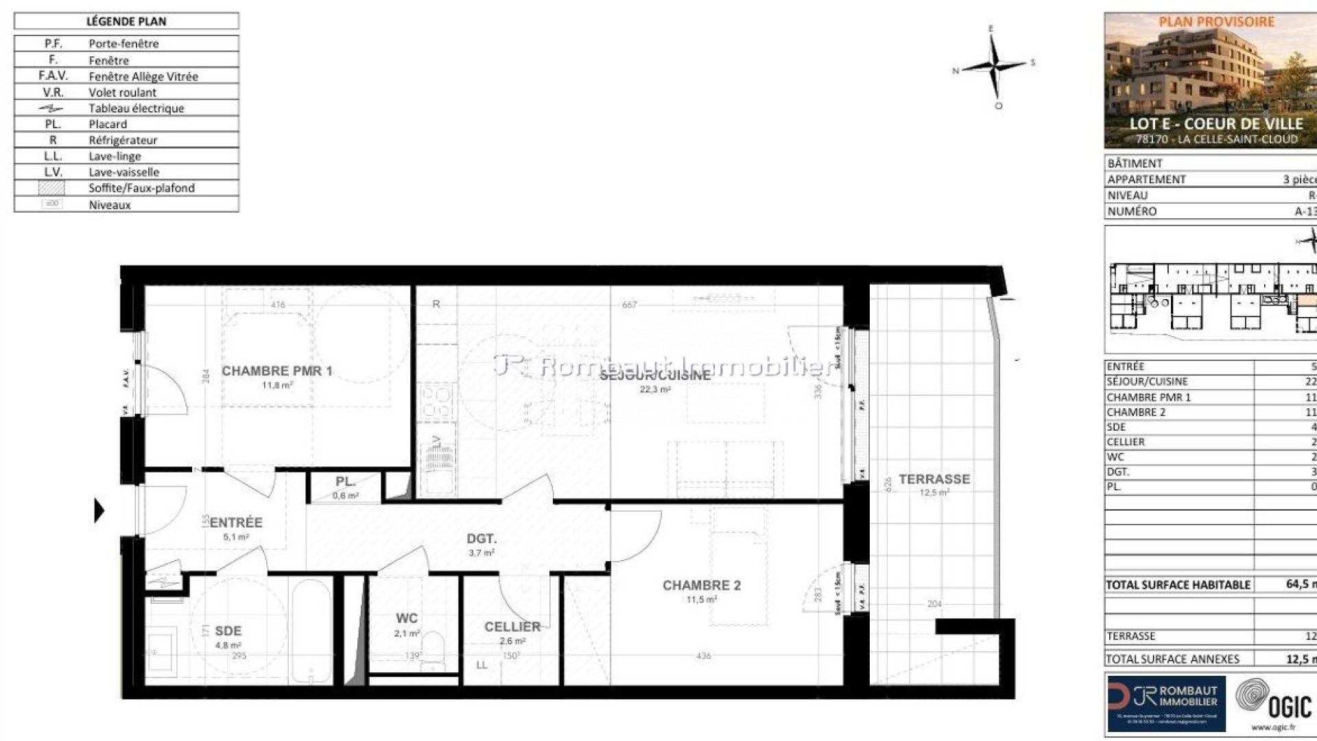
Situé au cœur du tout nouveau quartier Cœur de Ville à La Celle-Saint-Cloud, au sein de la résidence élégante « Le Parc du Château », découvrez ce superbe appartement 3 pièces neuf de 64,50 m², idéal pour une résidence principale au calme.
Un intérieur pensé pour votre confort :
Cet appartement 3 pièces de 64,50 m² situé en rez-de-chaussée, offre un cadre de vie agréable et fonctionnel. Il se compose d’une belle pièce de vie lumineuse, ouverte sur une terrasse de 12,50 m² exposée plein Sud, idéale pour profiter des beaux jours.
L’espace nuit comprend deux chambres, dont une conforme aux normes PMR, ainsi qu’une seconde chambre avec accès direct à la terrasse, apportant confort et praticité au quotidien.
Un parking en sous-sol complète ce bien.
Un cadre de vie privilégié :
Implantée harmonieusement entre la rue Centrale et une venelle piétonne, la résidence bénéficie d’une architecture contemporaine aux lignes élégantes, avec des façades en gradins et des terrasses en cascade. Les accès se font par des halls soignés, entourés d’espaces paysagers mêlant jardins et cheminements doux.
Un quartier vivant et verdoyant :
Pensé comme une nouvelle centralité, le quartier Cœur de Ville offre un environnement convivial et dynamique :
Médiathèque récente avec animations et événements
Commerces de proximité, restaurants, crèche et gare
Proximité immédiate de l’Hôtel de Ville et du théâtre
À seulement quelques minutes à pied, profitez également du parc de la Grande Terre, de nombreux jardins et d’une coulée verte, pour un équilibre parfait entre vie urbaine et nature.
Les + du bien :
Appartement neuf (VEFA)- Une promotion OGIC
Terrasse spacieuse
Parking en sous-sol
Quartier central et recherché
Environnement verdoyant et équipements à proximité
Une opportunité rare de vivre dans un cadre moderne, animé et apaisant à la fois.
Contactez-nous dès maintenant pour plus d’informations !

Honoraires à la charge du vendeur. Dans une copropriété de 255 lots. Quote-part moyenne du budget prévisionnel 3 000 €/an. Aucune procédure n’est en cours. DPE en cours. Les informations sur les risques auxquels ce bien est exposé sont disponibles sur le site Géorisques : georisques.gouv.fr.
Équipements :
Informations financières achat:
Honoraires : 0 €
Honoraires inclus : 450.000 €
Diagnostic de performance énergétique

Bilan énergétique non renseigné

Gaz à effet de serre

Bilan non renseigné

Estimation des dépenses annuelles en consommation énergétique en euros :

min : non renseigné €
max : non renseigné €

Contactez Nous

Ce bien vous intéresse ? Contactez-nous dès maintenant pour obtenir plus d’informations ou pour planifier une visite. Remplissez le formulaire ci-dessous et notre équipe vous répondra dans les plus brefs délais